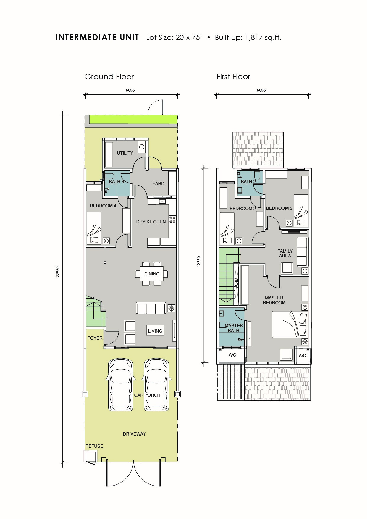
Floor Plan

camellia_floorplan